+18º
пасмурно
ветер 4,3 м/с, СЗ

Реклама: ООО "ОЛЕАНДР-МЕД", ИНН 9111026025

Реклама: Самозанятый Вандышев Александр Николаевич, ИНН 911113162887

Реклама: ИНН 910806164654 - ИП Лукьянова А.А.

Реклама: ИП Бехтер А.А., ИНН 911113102616

Реклама: ИП Бережной А.Г., ИНН 911116150093

Реклама: ООО «НПП «Вентос-Крым» ИНН 9111011396 

Реклама: ИП Кравченко Е. Л., ИНН 911109375963

Реклама: ООО "ПРАЙМЕР", ИНН 9102054851

Архив
«    Сентябрь 2017    »
ПнВтСрЧтПтСбВс
 123
45678910
11121314151617
18192021222324
252627282930 
29.09.2017 16:30 3 508 Новости » Бизнес новости

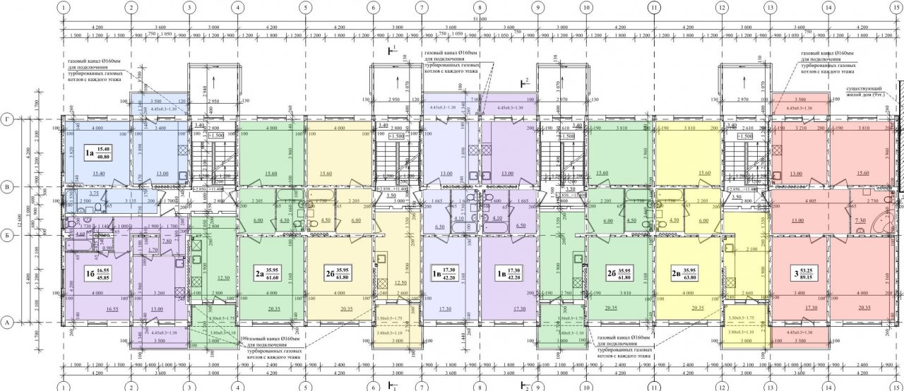
ООО «Марта» планирует строительство по ул. Рыбаков

ООО «Марта» планируется строительство 6-ти этажного 4-х подъездного  многоквартирного жилого дома  в микрорайоне «Марат-1» по ул. Рыбаков.

Проектом предусмотрены 1-но, 2-х, и 3-х комнатные квартиры улучшенной планировки с индивидуальным отоплением. Территория дома огорожена, имеется собственная автомобильная парковка. В цокольном этаже дома будут расположены нежилые помещения - офисы.

 С планировками квартир и другими вопросами вы можете ознакомиться в офисе ООО «Марта» по адресу: г. Керчь, ул. Шевякова, 23.

Т. +7 978 111 09 79

+7 989 776 75 76

 

Если вы увидели опечатку в тексте самой статьи, то выделите её и нажмите Ctrl+Enter.

Добавить комментарий
Информация
Комментировать статьи на сайте возможно только в течении 10 дней со дня публикации.

Реклама на ФМ

Реклама: ООО "АКР", ИНН 9111029178

Магазин «AUTOРАЙ» в Керчи!

Реклама: ИП Аникин Д.А., ИНН 911108952720

Реклама: Оценщик Ляхнова Е. И., ИНН 911110909930

Реклама: ИП Ищенко Е. А., ИНН 911100179516

Реклама: ИП Войтов В. В., ИНН 911101031030

Реклама: ИП Гришин И.И., ИНН 911107214600

Реклама: ИП Джум Д.А., ИНН 911111080237

Реклама: Гераскевич Галина Валерьевна , ИНН 911104425868

Реклама: ООО «Зимний Сад» , ИНН 9111004342

Реклама: ИП Горбунова Е.Г., ИНН 911103181168

Изготовление памятников

Реклама: ИП Кара - Иванов Ф. Л., ИНН 911108712253

Юридические услуги в Керчи. Громада София Валерьевна

Реклама: Юрист Громада С. В., ИНН 110204076670

Реклама: ИП Лошенко Е.А., ИНН 911109343707

Реклама: ИП Синкявичус А. В., ИНН 911100046562

Фабрика натяжных потолков «Виктория»

Реклама: ИП Бережной А.Г., ИНН 911116150093

Наверх