+5º
ясно
ветер 9,8 м/с, В

Реклама: ООО "ОЛЕАНДР-МЕД", ИНН 9111026025

Реклама: ИП Бехтер А.А., ИНН 911113102616

Реклама: ИП Кравченко Е. Л., ИНН 911109375963

Реклама: Самозанятый Вандышев Александр Николаевич, ИНН 911113162887

Реклама: ООО "Похоронный дом "Феникс", ИНН 9111027526

Реклама: ИП Бережной А.Г., ИНН 911116150093

Реклама: ИНН 910806164654 - ИП Лукьянова А.А.

Реклама: ООО "ПРАЙМЕР", ИНН 9102054851

Архив
«    Июнь 2019    »
ПнВтСрЧтПтСбВс
 12
3456789
10111213141516
17181920212223
24252627282930

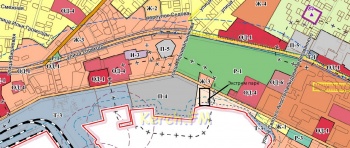
В Керчи многие частные дома и многоэтажки попали в санитарную зону предприятий

В Керчи многие частные дома и многоэтажки попали в санитарную зону предприятий. Керченские депутаты еще в январе месяце приняли подготовленные горадминистрацией правила землепользования и застройки МОГО Керчь. Керчане написали обращение к Путину, так как наученные горьким опытом выселений, боятся остаться без жилья, - передает Керчь.ФМ.

 

«Наши участки в Керчи по улице Тенистая были выданы под индивидуальное строительство в 1949 году. С этого времени по улице построили по четной стороне 14 домов. С обратной стороны участков людям во временное пользование давали огороды. В начале 60-х огороды изъяли и там построили плодово-овощную базу со складами, в санитарно-защитной зоне. Санзона граничила с нашими участками.

 

Так было до января 2019 года.  Целевое назначение земельного участка не изменялось до сих пор - пищевая промышленность. В 90-х овощебазу сдали в аренду и предприниматели там устроили металлобазу, мойку машин, грибное хозяйство, СТО. 31 января наши депутаты мало того, что за счет наших домов увеличили санзону, так они еще и внутри отдельный участок выделили, где сейчас предприниматель построил мойку, в том числе для грузовых, машин и огромный ангар. Как нам сказали - это СТО.

   

Жители домов неоднократно обращались в администрацию Керчи, Роспотребнадзор, прокуратуру с жалобами на невыносимый шум и запах со стороны бывшей овощебазы. Арендатора оштрафовали, но местные депутаты видимо решили "подмахнуть" предпринимателям и нарушить закон. Они взяли и увеличили производственную зону за счет санитарно-защитной зоны, а за счет наших домов сделали санитарно-защитную зону.

При этом, в новую санзону вошли три многоэтажных дома 1967-1968 годов постройки по улице Льва Толстого.

Мало того, что депутаты и администрация нарушили ст 107 Земельного кодекса, так еще и требования п 5.6 СанПиН 2.2.1/2.1.1.1200-03 : «5.6. Санитарно-защитная зона или какая-либо ее часть не может рассматриваться как резервная территория объекта и использоваться для расширения промышленной или жилой территории без соответствующей обоснованной корректировки границ санитарно-защитной зоны». Никаких корректировок не было, никаких публичных слушаний не было. Теперь мы, жители 14 частных домов и сотни жителей трех пятиэтажек - 130, 136, 138 по ул. Льва Толстого живем, как на пороховой бочке: нам нельзя приватизировать участки, строить и реконструировать жилье, в любую минуту к нам могут предъявить требования о выселении и освобождении участков.
 
Видимо, без Вашего вмешательства ни депутаты, которые при принятии решения не разбираются в рассматриваемых вопросах, ни администрация, когда ведет подготовку решений, ни глава Администрации не видят нарушения закона и не предполагают, что их бездумными решениями под вопрос попадают жизни сотен людей», - написали керчане в обращении к Путину.

Как видно из публичной кадастровой карты города Керчь весь треугольный земельный участок имеет категорию «Склады», вдоль него по улице Тенистая четырнадцать домовладений, а по улице Льва Толстого три пятиэтажных дома. И все эти дома и участки по принятым местными депутатами решению отнесены в санитарно-защитную зону предприятий и объектов.

 


Согласно ст 107 Земельного кодекса, принятой Госдумой в августе прошлого года и п 5.1 СанПиН 2.2.1/2.1.1.1200-03 "Санитарно-защитные зоны и санитарная классификация предприятий, сооружений и иных объектов" (с изменениями на 25 апреля 2014 года)  в санитарно-защитной зоне не допускается размещать: жилую застройку, включая отдельные жилые дома, ландшафтно-рекреационные зоны, зоны отдыха, территории курортов, санаториев и домов отдыха, территорий садоводческих товариществ и коттеджной застройки, коллективных или индивидуальных дачных и садово-огородных участков, а также других территорий с нормируемыми показателями качества среды обитания; спортивные сооружения, детские площадки, образовательные и детские учреждения, лечебно-профилактические и оздоровительные учреждения общего пользования.


Если лаконично: все четырнадцать домов по Тенистой и три многоэтажки по Льва Толстого теперь не должны там находиться.


Редакция решила изучить решение горсовета от 31 января 2019 года об утверждении правил землепользования и застройки МОГО Керчь и была очень удивлена - в санитарно-защитные зоны предприятий и объектов попали многие частные дома и многоэтажки. При этом, многие предприятия были созданы гораздо позже того, как там появились жилые дома. Так, в санзоне оказались часть домов по улице Котовского и Андреюшкина (в Решении горсовета Андреюшкина значится как «Андрюшкина»), многоэтажки по улицам Пошивальникова и Горького, дома на КУОРе и в начале Ворошилова  и многие другие. Даже недавно построенный «Экстрим-парк» в зоне отдыха «Черепашка» оказался в санзоне.

 


Полностью ознакомиться с Решением от 31.января 2019 года можно здесь. Стоит обратить внимание не столько на само решение, как на правила землепользования и на карту ППЗ.

tekst-kerch_pzz.pdf [2.4 Mb] (cкачиваний: 131) 22-r-reshenie-108-sessii-ob-utverzhdenii-pzz.pdf [161.4 Kb] (cкачиваний: 115)  

 

4 голоса
Служба новостей Керчь.ФМ

Если вы увидели опечатку в тексте самой статьи, то выделите её и нажмите Ctrl+Enter.

Добавить комментарий
Информация
Комментировать статьи на сайте возможно только в течении 10 дней со дня публикации.

Реклама на ФМ

Реклама: ИП Новиков Е. В., ИНН 911100059635

Магазин «AUTOРАЙ» в Керчи!

Реклама: ИП Аникин Д.А., ИНН 911108952720

Реклама: ИП Ищенко Е. А., ИНН 911100179516

Реклама: ИП Синкявичус А. В., ИНН 911100046562

Реклама: ИП Бережной А.Г., ИНН 911116150093

Реклама: ИП Гришин И.И., ИНН 911107214600

Реклама: ИП Джум Д.А., ИНН 911111080237

Реклама: ООО «ММГ Скейтинг», ИНН 7718552410

Реклама: ИП Люшняк Р. А., ИНН 911100108113

Реклама: ИП Батурина-Казбанова Виктория Геннадьевна, ИНН 910510158934

Юридические услуги в Керчи. Громада София Валерьевна

Реклама: Юрист Громада С. В., ИНН 110204076670

Реклама: ИП Войтов В. В., ИНН 911101031030

Реклама: ИП Горбунова Е.Г., ИНН 911103181168

Реклама: ООО «Зимний Сад» , ИНН 9111004342

Фабрика натяжных потолков «Виктория»

Реклама: ИП Бережной А.Г., ИНН 911116150093

Наверх