+22º
пасмурно
ветер 7,2 м/с, СЗ

Реклама: ООО "ОЛЕАНДР-МЕД", ИНН 9111026025

Реклама: Самозанятый Вандышев Александр Николаевич, ИНН 911113162887

Реклама: ИП Бехтер А.А., ИНН 911113102616

Реклама: ООО "Похоронный дом "Феникс Керчь", ИНН 9111032406

Реклама: ООО «НПП «Вентос-Крым» ИНН 9111011396 

Реклама: ИП Кравченко Е. Л., ИНН 911109375963

Реклама: ИП Бережной А.Г., ИНН 911116150093

Реклама: ИНН 910806164654 - ИП Лукьянова А.А.

Реклама: ООО "ПРАЙМЕР", ИНН 9102054851

Архив
«    Ноябрь 2019    »
ПнВтСрЧтПтСбВс
 123
45678910
11121314151617
18192021222324
252627282930 
14.11.2019 15:00 2 423 Новости » Бизнес новости

Видеообзор утепления и отделки фасада дома в Керчи от компании КЕРЧЬРЕМОНТ

Утепление и отделка фасада дома в Керчи.

Утепление и отделка фасада, являются взаимосвязанными технологическими процессами в строительстве. Они выполняют ряд важнейших задач: надежная защита здания от воздействия атмосферных явлений, улучшение теплоизоляционных характеристик дома (экономия теплоснабжения), а также придания дому эстетичности.

О том, как проходили все этапы работы смотрите в нашем новом видеоролике.

Компания «КЕРЧЬРЕМОНТ» была основана в 2004 году. За эти годы мы смогли собрать команду мастеров своего дела, обеспечить работу каждого сотрудника профессиональным инструментом и накопить бесценный опыт работы. Благодаря этим факторам мы с уверенностью можем предложить Вам внушительный перечень ремонтно-строительных услуг в Керчи. Для более детального знакомства с нашей компанией рекомендуем посетить наши сайты и сайты партнеров:

Строительная компания КЕРЧЬРЕМОНТ - https://kerchremont.com/

Салон отделочных материалов КЕРЧЬДЕКОР - http://www.kerchdecor.ru/

Сетевой Строймаркет ВЕЗУМАТЕРИАЛЫ - http://везуматериалы.рф

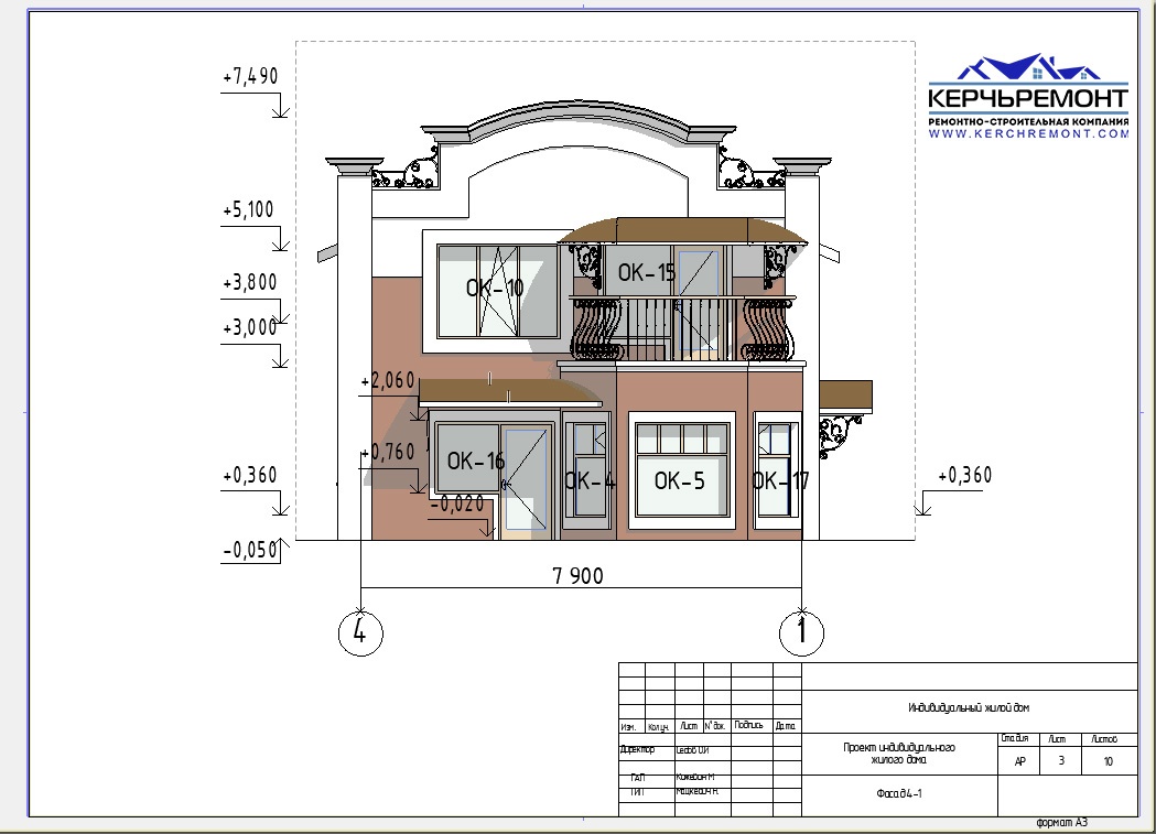
Видеообзор проектирования и первого этапа работ по строительству 2-ух этажного дома в Керчи:

 

Больше отзывов и видео с объектов смотрите на нашем сайте!

https://kerchremont.com/video.php

 

   

За долгие годы накоплен колоссальный опыт работы, усилиями наших специалистов отремонтированы сотни объектов самой различной степени сложности, от отделки балконов до строительства пансионатов.

 

Полный перечень наших услуг:

 

  • Строительные работы - строительство домов и коттеджей «под ключ»
  • Проектирование - разработка проектов жилых домов, пансионатов, баз отдыха, магазинов...
  • Кровельные работы - проектируем, возводим и ремонтируем кровли
  • Ремонт квартир и домов любой сложности
  • Балконы «под ключ» и металлопластиковые окна
  • Фасадные работы, утепление домов и квартир
  • Работы по Благоустройству
  • Дизайн проекты, включающие стилевые решения, техническую документацию и авторский надзор
  • Автоматические ворота
  • Заборы и металлоконструкции
  • Климатическая техника
  • Натяжные потолки

 

Больше информации на нашем сайте: kerchremont.com

 

   

 

Производим строительные работы в Керчи. Проектируем и строим коттеджи в Керчи и Ленинском районе. Все строительные работы мы выполняем силами штатных сотрудников, поэтому не срываем сроки, работаем по адекватным ценам и отвечаем за результат.

 

Строительство домов в Керчи — не единственное направление нашей работы, также мы возводим коммерческие и производственные сооружения, пристройки, занимаемся заборами и благоустройством территории, производим прочие строительные работы.

 

 

Наличие собственного проектного отдела в Керчи, позволяет создавать полноценные архитектурно-строительные проекты с детальной проработкой конструктивов и инженерных сетей:

 

     

 

Помогаем получить документы для начала строительства и сдачи дома в эксплуатацию благодаря наличию собственного проектного отдела.

 

У нас работают строители высшей квалификации, отделочники, специалисты по окнам, натяжным потолкам, климатической технике и вентиляции, инженеры и проектировщики, специалисты по кровле. Все наши сотрудники обеспечены самым качественным инструментом от лучших производителей России и Европы. Используем только свое оборудование для производства строительных работ.

 

Стройкой руководит прораб с профильным строительным образованием. Он знает всё о сроках и технологиях строительства, регламенте строительных работ и держит под контролем всё до мелочей. Кроме прораба за качеством строительных работ следит наш инженер и руководитель проекта.

 

О том, как идут дела на участке, мы рассказываем клиентам еженедельно. К назначенному дню недели передаём отчет о проделанной работе и иллюстрируем его фотографиями с объекта, предоставляя заказчикам фото и видеоотчеты.

 

 

Благодаря нашим партнёрам - магазину строительных материалов «Везуматериалы.рф» и салону отделочных материалов «КЕРЧЬДЕКОР» мы можем предоставлять нашим клиентам реальные скидки на черновые и отделочные материалы!

 

На все проделанные работы компания «КЕРЧЬРЕМОНТ» даёт гарантию от 2-ух до 5 лет года! Вы можете быть уверены в Вашем ремонте и строительстве.

 

Салон отделочных материалов «КЕРЧЬДЕКОР» предлагает Вам дизайнерские решения в Керчи от лучших производителей России и Европы для создания вашего идеального интерьера.

 

 

Наша студия дизайна и ремонта и салон-магазин находится по адресу г. Керчь, ул. Сморжевского, 4 (вход как со стороны Кирова, так и со Сморжевского), каждый день с 09.00 - 18.00 без перерыва и выходных наши двери открыты для посетителей.

 

Специально для Вас мы отбираем лучшие бренды и всегда готовы предложить эксклюзивную продукцию лучших фабрик-производителей, вся продукция которых сертифицирована на соответствие европейским стандартам и нормам безопасности.

У нас вы можете найти:

  • Напольные покрытия
  • Плитка и керамогранит
  • Двери входные и межкомнатные
  • Сантехника
  • Климатическая техника
  • Обои, фрески, покрытия
  • Багеты и лепнина
  • Шторы и гардины
  • Декоративная штукатурка
  • Кухни и мебель

Работая с Вами над проектом, мы помогаем осуществлять полный цикл по созданию вашего интерьера от идеи до воплощения. Помимо стандартной продажи отделочных материалов мы готовы бесплатно помочь с визуализацией вашего объекта в дизайнерских программах, чтобы Вы наглядно могли убедиться в конечном результате перед покупкой тех или иных материалов.

 

Ждём Вас по адресу: г. Керчь, ул. Сморжевского, 4

Звоните по телефону: +7 978 715 70 60

Или на нашем сайте: kerchremont.com

 

  

Отдельного внимания заслуживает наш надежный партнер - сеть строительных магазинов Везуматериалы.рф

 

С 2015 года компания занимается продажей инструмента, строительных материалов и комплексной поставкой оборудования, черновых и отделочных материалов на строительные объекты любой сложности.

  • Стройматериалы
  • Электроинструменты
  • Строительное оборудование
  • Крепеж
  • Плитка
  • Сантехника
  • Электротовары
  • Напольные покрытия
  • Двери
  • Сухие смеси
  • Лаки и краски

Мы гарантируем быструю доставку, качественный продукт и продуманную логистику!

Ждём вас по адресу: г. Керчь, ул. Ворошилова, 3а и ул. Генерала Петрова, 18

На нашем сайте: https://www.везуматериалы.рф

Или по телефону: +7 978 134 777 4

 

   

Подписывайтесь на нас в социальных сетях:

КЕРЧЬРЕМОНТ

    

ВЕЗУМАТЕРИАЛЫ

  

КЕРЧЬДЕКОР

 

Если вы увидели опечатку в тексте самой статьи, то выделите её и нажмите Ctrl+Enter.

Добавить комментарий
Информация
Комментировать статьи на сайте возможно только в течении 10 дней со дня публикации.

Реклама на ФМ

Магазин «AUTOРАЙ» в Керчи!

Реклама: ИП Аникин Д.А., ИНН 911108952720

Реклама: ИП Киргетова Д. С., ИНН 9 111 097 444 66

Изготовление памятников

Реклама: ИП Кара - Иванов Ф. Л., ИНН 911108712253

Юридические услуги в Керчи. Громада София Валерьевна

Реклама: Юрист Громада С. В., ИНН 110204076670

Реклама: ИП Люшняк Р. А., ИНН 911100108113

Реклама: ИП Новиков Е. В., ИНН 911100059635

Реклама: ИП Цинтынь Е. В. , ИНН 911100113579

Реклама: ИП Гришин И.И., ИНН 911107214600

Реклама: ИП Батурина-Казбанова Виктория Геннадьевна, ИНН 910510158934

Реклама: ИП Горбунова Е.Г., ИНН 911103181168

Реклама: ИП Павленко М. Р., ИНН 911103871108

Реклама: ИП Кучеренко Э.В., ИНН 911100186665

Реклама: ООО «Зимний Сад» , ИНН 9111004342

Реклама: ИП Синкявичус А. В., ИНН 911100046562

Фабрика натяжных потолков «Виктория»

Реклама: ИП Бережной А.Г., ИНН 911116150093

Наверх