+6º
небольшой дождь
ветер 2,9 м/с, ЮЗ

Реклама: ООО "ОЛЕАНДР-МЕД", ИНН 9111026025

Реклама: ИП Бехтер А.А., ИНН 911113102616

Реклама: ООО «НПП «Вентос-Крым» ИНН 9111011396 

Реклама: ИП Бережной А.Г., ИНН 911116150093

Реклама: ИП Кравченко Е. Л., ИНН 911109375963

Реклама: Самозанятый Вандышев Александр Николаевич, ИНН 911113162887

Реклама: ИНН 910806164654 - ИП Лукьянова А.А.

Реклама: ООО "ПРАЙМЕР", ИНН 9102054851

Архив
«    Апрель 2022    »
ПнВтСрЧтПтСбВс
 123
45678910
11121314151617
18192021222324
252627282930 
16.04.2022 10:00 3 011 Новости » Бизнес новости

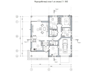
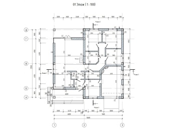
Проектирование и строительство дома S - 142 кв.м в Керчи

К сожалению, первоначальный этап с чего начинать строительства дома у обычного человека ассоциируется с архитектурной частью проекта. Вроде бы уже есть участок, возможно даже очищен от мусора и строений, иногда с заранее подведенными коммуникациями. И следующим с чего надо начать это выбор архитектора, составления эскизов или покупка готового проекта дома. Но даже если у вас все прекрасно выходит, дом красивый, и планировки хорошие, да еще и вписался в рельеф то все равно это не застрахует вас от полного отказа от первичной идеи и кардинальной смене курса. И таким непреодолимым препятствием может стать не благополучные геологические условия.

 

   В нашу компанию поступил запрос на проектирование 2-х этажного дома, но вопрос провести геологическую разведку постоянно переносился. В приоритетах было разработать красивый и практичный дом с определённым наборам помещений и интегрировать гараж. Желание построить дом обычно рождается не внезапно, а вынашивается годами, и мы понемногу формируем идеальную картину под свои нужды, перебирая из множество вариантов.

 

  На основе анализа полученных геодезических данных у инженеров возникли сомнения и при первичном осмотре соседних строений и прилегающей территории больше не оставалось сомнений, что провести геологические изыскания является важным этапом и медлить больше не стоит. После разведки стало понятно что основания имеет большую неоднородность и фундамент тяжёлого 2х этажного дома попадал на грунты с разными физико-механическими свойствами что приведет к неравномерной усадке и к тяжелым последствиям. Усложняло общую картину перемещение одного из слоев по направлению склона так как участок попадал на старое русло реки.

 

 

  По традиции, проанализировав полученные данные в течении нескольких дней клиенту была предложена новая концепция, не уступающая первоначально поставленным задачам, но уже в одном уровне в виде одноэтажного дома с большим пятном застройки и меньшей сосредоточенной нагрузкой на фундамент. За основы был принят свайно-ростверковый фундамент с применением буронабивных свай, а основанием послужили грунты, залегающие на большей глубине.

 

  Вы скажете, что решение заменить 2х этажный дом на 1 этажный - это не решение, но мы с вами не согласимся. Во-первых, 2х этажный дом уступает по полезной площади так как очень много забирают лестницы и площадки, и скорей являются альтернативой при маленьких участках или в заблокированном строительстве. Во-вторых, как показал этот пример, невозможно построить на слабых грунтах.

 

 В итоге клиент получил надежный современный дом с интересной и практичной планировкой, а мы в очередной раз решили сложную задачу и повысили свои навыки в строительной сфере.

 

 

Подписывайтесь на наши соц.сети, чтобы быть в курсе всех событий связанных с ремонтом и строительством в Керчи, а также следить за ходом работ на наших объектах:

Вконтакте

https://vk.com/kerchremont 

https://vk.com/kerch_decor 

Одноклассники

https://ok.ru/kerchremon 

Записаться на экскурсию по нашим объектам, на встречу в офисе-шоуруме компании или просто проконсультироваться можно по данным контактам:

Телефон: +7 (978) 715 70 60 (также WhatsApp/Viber)

Email: kerchremont@mail.ru 

Сайт: https://kerchremont.com 

Наш офис, магазин и шоу-рум находится по адресу:

г. Керчь, ул. Сморжевского 4

 

Если вы увидели опечатку в тексте самой статьи, то выделите её и нажмите Ctrl+Enter.

Добавить комментарий
Информация
Комментировать статьи на сайте возможно только в течении 10 дней со дня публикации.

Реклама на ФМ

Реклама: ИП Люшняк Р. А., ИНН 911100108113

Реклама: ИП Павленко М. Р., ИНН 911103871108

Реклама: ООО «ММГ Скейтинг», ИНН 7718552410

Реклама: Оценщик Ляхнова Е. И., ИНН 911110909930

Реклама: ООО "АКР", ИНН 9111029178

Юридические услуги в Керчи. Громада София Валерьевна

Реклама: Юрист Громада С. В., ИНН 110204076670

Реклама: Гераскевич Галина Валерьевна , ИНН 911104425868

Реклама: ИП Киргетова Д. С., ИНН 9 111 097 444 66

Реклама: ИП Войтов В. В., ИНН 911101031030

Реклама: ИП Батурина-Казбанова Виктория Геннадьевна, ИНН 910510158934

Реклама: ИП Кучеренко Э.В., ИНН 911100186665

Изготовление памятников

Реклама: ИП Кара - Иванов Ф. Л., ИНН 911108712253

Реклама: ИП Афанасьева Е. А., ИНН 911113720429

Реклама: ИП Лошенко Е.А., ИНН 911109343707

Фабрика натяжных потолков «Виктория»

Реклама: ИП Бережной А.Г., ИНН 911116150093

Наверх