+21º
пасмурно
ветер 6,2 м/с, СЗ

Реклама: ООО "ОЛЕАНДР-МЕД", ИНН 9111026025

Реклама: ИП Бехтер А.А., ИНН 911113102616

Реклама: ИП Кравченко Е. Л., ИНН 911109375963

Реклама: ИНН 910806164654 - ИП Лукьянова А.А.

Реклама: Самозанятый Вандышев Александр Николаевич, ИНН 911113162887

Реклама: ИП Бережной А.Г., ИНН 911116150093

Реклама: ООО «НПП «Вентос-Крым» ИНН 9111011396 

Реклама: ООО "Похоронный дом "Феникс Керчь", ИНН 9111032406

Реклама: ООО "ПРАЙМЕР", ИНН 9102054851

Архив
«    Май 2022    »
ПнВтСрЧтПтСбВс
 1
2345678
9101112131415
16171819202122
23242526272829
3031 
07.05.2022 17:00 3 598 Новости » Бизнес новости

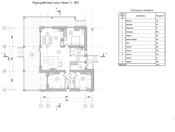
Видеообзор строительства дома 200 м2 под Керчью (п. Золотое) от компании КЕРЧЬРЕМОНТ

«Идеальная цель должна быть конкретна, измерима и достижима в отведенные сроки».

Так и у нас в мае прошлого года поступила заявка на проектирование и реализацию частного комплекса из двух разноуровневых зданий на одном участке со сложным рельефом.

При составлении технического задания сразу был поставлен акцент на современную архитектуру и размещение зданий с сохранением видовых характеристик с учетом сложившегося ландшафта. Были поставлены рамки, при которых дома должны располагается параллельно морю, но не перекрывая друг друга.

Для реализации таких целей мы используем дроны для аэрофотосъемки и анализа прилегающей территории и этот раз не был исключением.

Благодаря полученным данным мы смогли соединить современную горную архитектуру в сочетании со стилем прерий и уже на первых этапах эскизного проектирования сложилась идея, которая легла в основу проекта «Дом у Моря».

 

Дальше шли недели сложных расчетов, работы геологов и инженерного состава по определению конструктивной схемы и анализа грунтов основания, теплотехнических и расчетов по инсоляции  для подбора рациональной схемы по утеплению, отоплению и кондиционированию .Решению по наружным сетям -водопроводу и канализации с дальнейшей установкой локально очистных станций с учетом водоохранной зоны и последующей доочистки сточных и ливневых вод.

Как было сказано ранее «идеальная цель должна быть конкретна» и даже самые на первый взгляд несовместимые задачи могут быть сформулированы и собраны в одну идею. А «измерить и выполнить в отведенные сроки» возможно только при совместной работе команды профессионалов.

В итоге у нас получилось вписать современную архитектуру, состоящую из стекла и бетона в сложный живописный ландшафт и положить начало очередной красивой истории по созданию уютного уголка на берегу Азовского моря под названием «Дом у Моря».

Подписывайтесь на наши соц.сети, чтобы быть в курсе всех событий связанных с ремонтом и строительством в Керчи, а также следить за ходом работ на наших объектах:

Вконтакте

https://vk.com/kerchremont

https://vk.com/kerch_decor

Одноклассники

https://ok.ru/kerchremon

Записаться на экскурсию по нашим объектам, на встречу в офисе-шоуруме компании или просто проконсультироваться можно по данным контактам:

Телефон: +7 (978) 715 70 60 (также WhatsApp/Viber)

Email: kerchremont@mail.ru

Сайт: https://kerchremont.com

Наш офис, магазин и шоу-рум находится по адресу:

г. Керчь, ул. Сморжевского 4

Если вы увидели опечатку в тексте самой статьи, то выделите её и нажмите Ctrl+Enter.

Добавить комментарий
Информация
Комментировать статьи на сайте возможно только в течении 10 дней со дня публикации.

Реклама на ФМ

Реклама: ИП Цинтынь Е. В. , ИНН 911100113579

Реклама: ИП Джум Д.А., ИНН 911111080237

Магазин «AUTOРАЙ» в Керчи!

Реклама: ИП Аникин Д.А., ИНН 911108952720

Реклама: ИП Кучеренко Э.В., ИНН 911100186665

Юридические услуги в Керчи. Громада София Валерьевна

Реклама: Юрист Громада С. В., ИНН 110204076670

Реклама: Оценщик Ляхнова Е. И., ИНН 911110909930

Реклама: ИП Гришин И.И., ИНН 911107214600

Реклама: ИП Батурина-Казбанова Виктория Геннадьевна, ИНН 910510158934

Реклама: ИП Добрынин Д.В., ИНН 911109540871

Реклама: ИП Горбунова Е.Г., ИНН 911103181168

Реклама: ООО "АКР", ИНН 9111029178

Реклама: ООО «Зимний Сад» , ИНН 9111004342

Изготовление памятников

Реклама: ИП Кара - Иванов Ф. Л., ИНН 911108712253

Реклама: ИП Бережной А.Г., ИНН 911116150093

Фабрика натяжных потолков «Виктория»

Реклама: ИП Бережной А.Г., ИНН 911116150093

Наверх