+9º
облачно с прояснениями
ветер 9,3 м/с, Ю

Реклама: ООО "ОЛЕАНДР-МЕД", ИНН 9111026025

Реклама: ИП Бережной А.Г., ИНН 911116150093

Реклама: ИП Кравченко Е. Л., ИНН 911109375963

Реклама: Самозанятый Вандышев Александр Николаевич, ИНН 911113162887

Реклама: ИНН 910806164654 - ИП Лукьянова А.А.

Реклама: ООО "Похоронный дом "Феникс", ИНН 9111027526

Реклама: ООО "ПРАЙМЕР", ИНН 9102054851

Архив
«    Июнь 2022    »
ПнВтСрЧтПтСбВс
 12345
6789101112
13141516171819
20212223242526
27282930 
18.06.2022 11:00 2 808 Новости » Бизнес новости

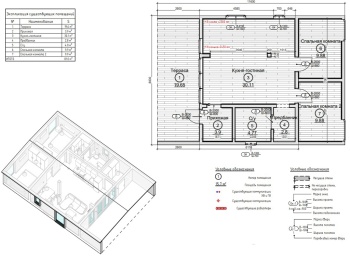
Проектирование и строительство модульного дома 72 м.кв

Модульный дом 72 м.кв, построенный по скандинавской технологии, одноэтажный, компактный с двускатной фальцевой кровлей, просторной террасой и панорамным фасадным остеклением.

Речь пойдёт о современных домах, в частности, барнхаусах. 

Барнхаус или модульный дом, достаточно свежее течение в проектирование и строительстве в нашей стране. 

Дома мы проектируем и строим по скандинавской технологии, учитывая достаточно суровый климат родины такого типа строительства, несмотря на свой не фундаментальный внешний вид - эти дома практичны, функциональны и уютны для проживания. 

При проектировании мы учли все основные потребности человека для комфортного проживания: необходимые комнаты, система вентиляции и жизнеобеспечения дома. Модульные дома передаются заказчику с отделкой, освещением, полами и дверьми. Выделяющиеся элементы дома, которые приковывают к себе внимание, это панорамные окна лицевой части дома и просторная терраса. Благодаря такому способу остекления с внешней стороны дом выглядит легче, а внутри дома обеспечивает заполнение пространства дневным, естественным светом и визуально расширяет пространство. 

Что же такое дом для постоянного проживания?

 

В настоящее время это дом, который оборудован высокоскоростным интернетом, стиральной и посудомоечной машиной, кондиционером, элементами «умного дома», в таком доме необходима большая кухня, вот что такое дом для постоянного проживания. Создавая наши дома, мы учли эти моменты и, по сути, заказчик получает необходимый базис, дом, который легко подстраивается под человека. Благодаря такому подходу все дома изначально являются однотипными, но в итоге каждый становится индивидуальным. 

Разрабатывая дизайн наших каркасных домов, преследуется цель по гармонизации пространства окружающего человека, такая постановка вопроса ставит перед дизайнерами более сложную задачу чем создание лишь визуально привлекательного пространства. Разработка проекта включает комплекс мер по формированию практичных и эстетичных решений, направленных на улучшение качества и уровня жизни. 

Учитывая плюсы и минусы каркасных домов, удается добиться хороших результатов, а заказчик получает свой собственный и неповторимый дом, в котором удобно жить и приятно проводить время.

 

Более подробно по стоимости услуг можем проконсультировать по телефону + 7 978 982-59-55 (также WhatsApp/Viber) или при встрече в офисе. 

Подписывайтесь на наши соц.сети, чтобы быть в курсе всех событий связанных с ремонтом и строительством в Керчи, а также следить за ходом работ на наших объектах: 

Вконтакте 

https://vk.com/kerchremont  

https://vk.com/kerch_decor 

 

Одноклассники 

https://ok.ru/kerchremont  

Записаться на экскурсию по нашим объектам, на встречу в офисе-шоуруме компании или просто проконсультироваться можно по данным контактам: 

Телефон: +7 (978) 715 70 60 (также WhatsApp/Viber) 

Email: kerchremont@mail.ru 

Сайт: https://kerchremont.com  

Наш офис, магазин и шоу-рум находится по адресу: г. Керчь, ул. Сморжевского 4

Если вы увидели опечатку в тексте самой статьи, то выделите её и нажмите Ctrl+Enter.

Добавить комментарий
Информация
Комментировать статьи на сайте возможно только в течении 10 дней со дня публикации.

Реклама на ФМ

Изготовление памятников

Реклама: ИП Кара - Иванов Ф. Л., ИНН 911108712253

Реклама: ИП Цинтынь Е. В. , ИНН 911100113579

Реклама: ИП Новиков Е. В., ИНН 911100059635

Реклама: ООО «АЙКЛИНИК», ИНН 9111024148

Магазин «AUTOРАЙ» в Керчи!

Реклама: ИП Аникин Д.А., ИНН 911108952720

Реклама: ООО «Зимний Сад» , ИНН 9111004342

Реклама: ИП Горбунова Е.Г., ИНН 911103181168

Реклама: ИП Павленко М. Р., ИНН 911103871108

Юридические услуги в Керчи. Громада София Валерьевна

Реклама: Юрист Громада С. В., ИНН 110204076670

Реклама: ИП Афанасьева Е. А., ИНН 911113720429

Реклама: ИП Киргетова Д. С., ИНН 9 111 097 444 66

Реклама: ИП Джум Д.А., ИНН 911111080237

Реклама: ИП Цинтынь Е. В. , ИНН 911100113579

Реклама: Гераскевич Галина Валерьевна , ИНН 911104425868

Фабрика натяжных потолков «Виктория»

Реклама: ИП Бережной А.Г., ИНН 911116150093

Наверх